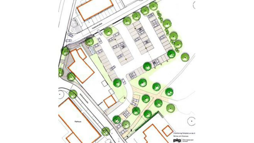
Bereits beim Bau des Rathauses in Bernau am Chiemsee war die Erweiterung des bestehenden Parkplatzes an der Kastanienallee diskutiert worden. Mittlerweile ist offensichtlich, dass der Parkraum an dieser Stelle dringend benötigt wird, um die Ortsmitte zu stärken. An vielen Tagen ist der Parkplatz überfüllt.
Aus diesem Grund hat sich der Gemeinderat entschlossen, einer Überplanung näherzutreten, die aber auch den Umgriff mit ins Auge fasst. So sollen Teile neben dem Seiwaldgebäude alleeartig begrünt werden und auch die Gehwegsituation zur Kastanienallee soll aufgewertet werden, ebenso wie die Einfahrtssituation aus der Chiemseestraße in die Kastanienallee. Anbei der aktuelle Planungsstand, der durch Herrn Hajer von der PLG Traunstein im Gremium vorgestellt wurde. Geplant ist auch die Errichtung von sechs E-Ladepunkten im hinteren Bereich des Parkplatzes. Leider erwiesen sich die Kosten für die Erweiterung und Umplanung als sehr hoch, so dass diverse Einsparmöglichkeiten im Gremium diskutiert wurden, die nun in die Planungen einfließen sollen. Aufgrund der bereits laufenden großen Baumaßnahmen wird der Parkplatz dieses Jahr nicht mehr verwirklicht, so Tenor und Beschluss der Verwaltung und des Gremiums. Maximal können einzelne Teile angegangen werden, wie z. B. die Errichtung von Ladestationen für E-Autos. Dies muss dann nach Vorstellung der überarbeiteten Planungen und Kostenschätzungen im Gremium erneut diskutiert werden. Der Betrag für die Erweiterung und den Umbau kann an dieser Stelle leider nicht genannt werden, da es sich um ein einziges Gewerk handelt und eine Nennung der Summe eventuell negative Auswirkungen auf eine künftige Ausschreibung haben könnte.
Bericht und Bildmaterial: Gemeinde Bernau



