Mehrfach hatte sich der Bauausschuss bereits mit der Änderung des Bebauungsplans „Oberer Buchwald“ befasst. In seiner jüngsten Sitzung behandelte er die Stellungnahmen von elf Bürgern, die sich alle vehement gegen eine zu dichte Bebauung an der Hocherlacher Straße am Ortsrand von Übersee aussprachen.
Vor der Verlesung der Einwände sagte Gemeinderat Hans Thullner (Grüne), der vor fünf Wochen gefällte Satzungsbeschluss habe mit der Bauleitplanung nicht mehr viel zu tun. Es bedürfe dringend einer Umweltprüfung. Wahrscheinlich noch nie hätten sich so viele Bürger vor dem Auslegungs- und Billigungsbeschluss so stark gegen die Änderung eines Bebauungsplans ausgesprochen. „Jetzt müssen wir die Bremse reinhauen“, so Thullner.
Bürgermeister Herbert Strauch (Freie Bürgerliste, FBL) erklärte, dass gemäß des Landesentwicklungsprogramms und des Regionalplans Südostbayern, vorhandene und für eine bauliche Nutzung geeignete Flächen in den Siedlungsgebieten vorrangig genutzt werden sollten. Die Gemeinde habe keinen Einfluss darauf gehabt, dass das große Bauernhaus abgerissen wurde. Das geplante Gebäude entspreche in seiner Grundfläche dem bisherigen Gebäude. Die leicht südöstlich versetzte Lage ergebe sich aus der Anordnung einer Doppelgarage im Norden, die direkt an das Hauptgebäude anschließen soll. Das Nebengebäude im Süden sei der Ersatz für den bestehenden Schuppen.
Gemeinderat Stefan Haneberg (GfÜ) stellte fest, dass das zubebauende Grundstück im früheren Plan 170 Quadratmeter groß, 17 mal 10 Meter, gewesen sei. Jetzt sei die Fläche auf 18 mal 12 Meter erweitert worden, also 60 mehr. Am Ende dürfe jedenfalls kein „Gesamtkomplex“ dastehen. Außerdem sprach er die alte Birke mit einem Umfang von 2,50 Meter im geplanten Zufahrtsbereich an. Sie müsse auf jeden Fall geschützt werden. Auch Leo Segin (GfÜ) hielt die Bebauung für „zu dicht, zu groß und zu massiv“. Der ursprüngliche Plan sei aufgelockerter gewesen.
„Bürger werden sensibler“
Anton Stefanutti (Grüne) bedauerte, wie viele andere auch, dass das alte Bauernhaus abgerissen worden sei. Es sei aber „etwas verhöhnend“ hier von „behutsamer Nachverdichtung“ zu sprechen, wie es als Antwort zu den Stellungnahmen heißt. Die elf Einwände der Bürger zeigen nach Stefanuttis Meinung, dass die Überseer im Hinblick auf Umwelt- und Bebauung zunehmend sensibler reagierten. Der Bürgermeister erläuterte, der Ursprungsgedanke sei ein größerer Baukorpus gewesen, da das Baufenster ziemlich groß sei. Obwohl Übersee keine Baumschutzverordnung habe, müsse man auf den Schutz der alten Birke jedoch noch näher eingehen. Die Höhe der Häuser sei – vom Gelände ausgehend – gestaffelt. Paul Stephl (FBL) betonte, dass das alte Bauernhaus nicht unter Denkmalschutz gestanden habe. Er finde es nicht schlimm, wenn es durch die etwas größere Baufläche eine Gewinnmaximierung gebe. Auch wenn es unpopulär sei, sollte man um eine alte Birke kein solches Gewese machen.
Die Abstimmungen zu den Einwänden der Bürger fiel meist mit Stimmengleichheit, also 4 zu 4 Stimmen aus, einige Male mit 5 zu 3, so dass der Beschlussvorschlag der Verwaltung abgelehnt war. Den grundsätzlichen Billigungs- und Auslegungsbeschluss nahmen dagegen sieben Gemeinderäte gegen die Stimme von Hans Thullner an.
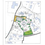
Bericht und Repro: Christiane Giesen – Die Änderung des Bebauungsplans „Oberer Buchwald“, für die der Bauausschuss den Billigungs- und Auslegungsbeschluss fasste.





